Tømrermester Bjørn
Martin Bamrud AS
Bergsgt. 18
3070 SANDE
Alnes
Type bolig: Enebolig
Type tomt: Flat
Antall soverom: 4/5
BRA totalt: 184 m²
BRA bolig: 176 m²
BRA overbygg: 8 m²
BRA garasje / carport: 0 m²
PROM: 155 m²
BYA: 119 m²
Største lengde x bredde: 14,2 m x 9,5 m
Høyde gesims / møne: 4,84 m / 6,74 m
Alnes er drømmeboligen for den store familien! Med sin planløsning og gode oppholdsrom gir den mulighet for både privatliv og fellesskap. Inngangspartiet har et praktisk overbygg med svalgang som også gir fasaden en spennende dimensjon.
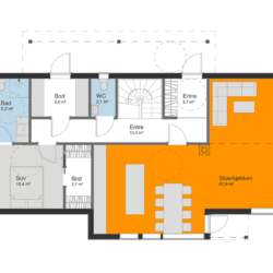
I 1. etasje er det inngang med entre, bod med bi-inngang, eget wc-rom, stort soverom med tilhørende garderobe og en-suite-bad, samt stor stue med åpen kjøkkenløsning og to terrassedører ut i hagen. I 2. etasje er det gang med kontorplass, teknisk rom, enda en stor bod, tre store soverom, bad med spenndende planløsning og koselig stue med stor takhøyde og store vindusflater.
Arkitekt: Bent Eddie Lie.


















