Tømrermester Bjørn
Martin Bamrud AS
Bergsgt. 18
3070 SANDE
Gullholmen
Type bolig: Enebolig med utleiedel
Type tomt: Skrå
Antall soverom: 4/5
BRA totalt: 261 m²
BRA bolig: 221 m²
BRA garasje / carport 32 m²
BRA overbygg: 8 m²
PROM: 198 m²
BYA: 166 m²
Største lengde x bredde: 19,9 m x 9,7 m
Høyde gesims / Møne: 5,82 m / 7,86 m
Gullholmen er den store eneboligen som har alt. Det valmete taket, og det fremskutte stuepartiet gir dette huset et erverdig preg.
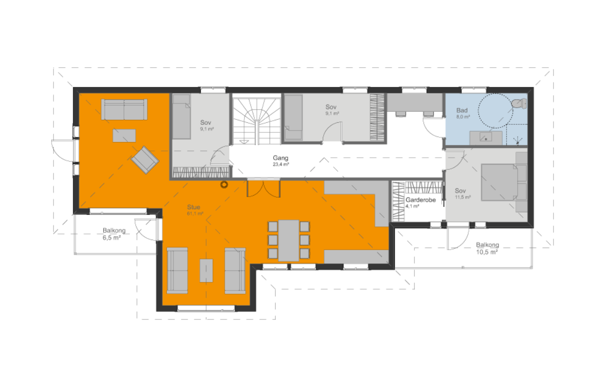
I 1. etasje er det integrert dobbel garasje med innvendig dør inn til boligen. Inngangspartiet har takoverbygg. I 1. etasje er det vaskerom med egen bi-inngang, bod, teknisk rom, bad og trapp opp til 2. etasje. 1. etasje har i tillegg utleiedel med egen inngang, stue med åpen kjøkkenløsning, bod, bad og soverom. Utleiedelen kan enkelt integreres med resten av huset hvis man ønsker enda mer plass. I 2. etasje er det stor gang med kontorplass, stort bad, tre soverom, hvor det største har egen garderobe og utgang til balkong. Stuen har åpen kjøkkenløsning og utgang til balkong og hage.
Arkitekt: Bent Eddie Lie.


















